Ethan Barley
Home
Art Architecture Resume Contact
Home
Ethan Barley
ArtArchitectureResumeContact

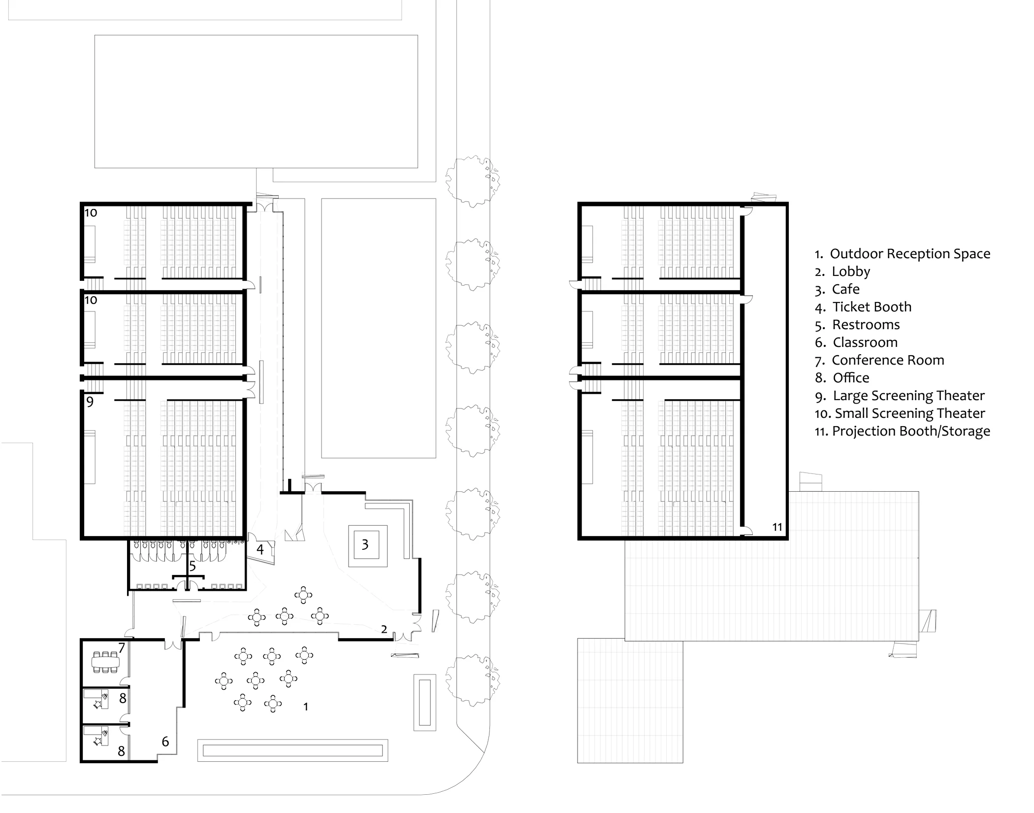
ODEUM

Salt Lake City Film Center

U of U Bachelors Program
Libby Haslam
13 Weeks
Film Society HQ & Theater
Salt Lake City, Utah | 2011

AcademicEthan BarleyDecember 1, 2010
Facebook0 Twitter Pinterest0 0 Likes
Previous

INTROSPECTIVE

AcademicEthan BarleyDecember 9, 2011

ethanbarley@gmail.com

801.831.8468

8018318468 ethanbarley@gmail.com
Hours